Maison 130 m² 4 chambres sur terrain de 480 m²
à Vaux-Sur-Mer (17640) – 552 000 €
Votre projet de construction à Vaux-Sur-Mer
17640 Vaux-Sur-Mer - Charente-Maritime552 000 €
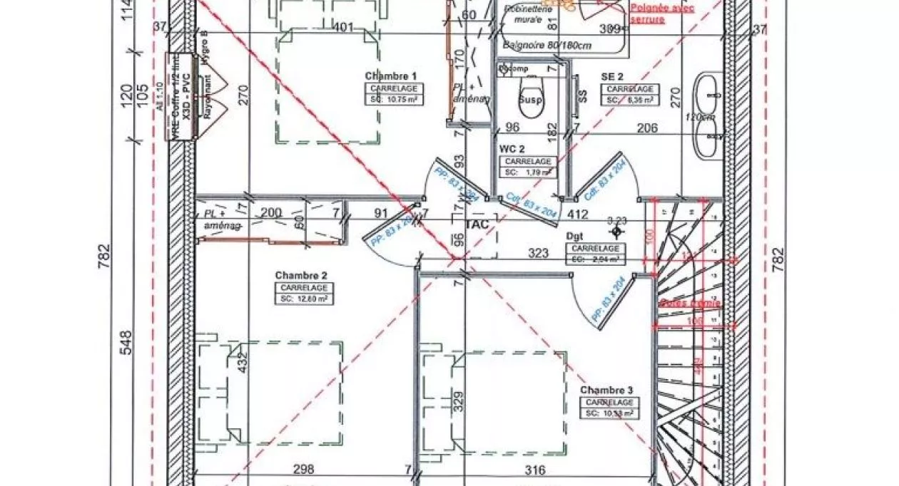
Maison avec étage partiel, comprenant au RDC 1 entrée, un cellier, un WC indépendant, 1 suite parentale (salle d'eau et dressing), une grande pièce de vie lumineuse avec cuisine ouverte, et un garage. A l'étage avec 3 chambres, une salle de bain et un WC indépendant.
Contactez Damien ACKERMANN au 06 07 72 91 74 (Maisons Chantal B - Agence Royan).
Prix avec assurance dommages-ouvrage comprise, terrain viabilisé, assainissement compris, VRD non compris, adaptation non comprise, frais de notaire non compris, taxes non comprises, frais divers non compris. Terrain sélectionné et vu pour vous sous réserve de disponibilité et au prix indiqué par notre partenaire foncier. Conditions et visuels non contractuels.




