Maison 82 m² 3 chambres sur terrain de 828 m²
à Roullet-Saint-Estephe (16440) – 183 900 €
Votre projet de construction à Roullet-Saint-Estephe
16440 Roullet-Saint-Estephe - Charente183 900 €
A ROULLET-SAINT-ESTEPHE sur un terrain de 828 m², MAISONS CHANTAL B vous propose une maison avec L'élégance optimisée,
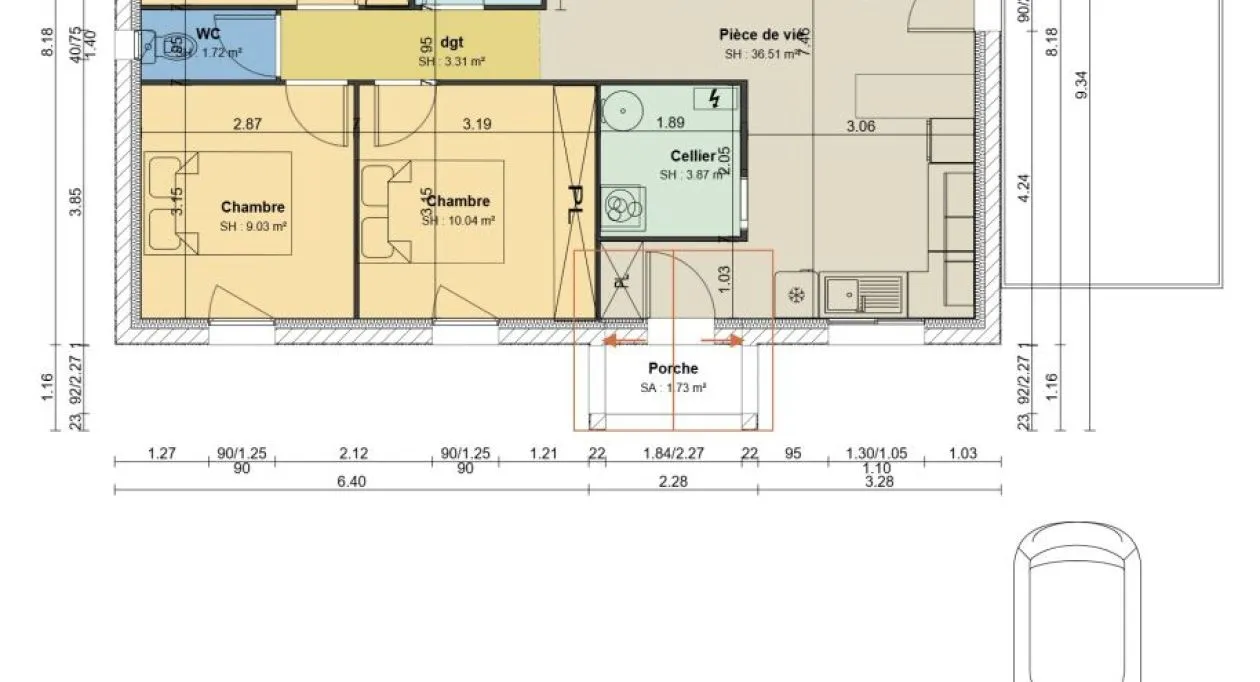
Découvrez cette maison contemporaine de 3 chambres, ou chaque m² est pensé pour votre confort.
Un séjour baigné de lumière grâce a sa grande baie vitrée, un cellier fonctionnelle, et une architecture prête a évoluer avec vous offrant la possibilité d'ajouter un futur garage.
Un design raffiné, une luminosité optimale, pour un confort RE 2020 dans un espace parfaitement maitrisé.
MAISONS CHANTAL B vous propose les prestations suivantes :
- Plan sur-mesure et personnalisé de 2 à 5 chambres
- Mode de chauffage au choix
- Grands choix d'équipements et de prestations
- Matériaux de qualité selon les normes en vigueur
- Accompagnement dans le choix et l’acquisition du terrain
- Construction conforme à la nouvelle RE 2020
Informations du terrain : Cadre naturel et paisible
Terrain viabilisé
Assainissement autonome, cout de raccordement réduit et gestion simplifié.
Taxe foncière très faible
espace généreux et intimité
Qualité de vie privilégié
Accès aux commodités proches
Demandez une étude gratuite et personnalisée de votre projet de construction !
Découvrez cette maison contemporaine de 3 chambres, ou chaque m² est pensé pour votre confort.
Un séjour baigné de lumière grâce a sa grande baie vitrée, un cellier fonctionnelle, et une architecture prête a évoluer avec vous offrant la possibilité d'ajouter un futur garage.
Un design raffiné, une luminosité optimale, pour un confort RE 2020 dans un espace parfaitement maitrisé.
MAISONS CHANTAL B vous propose les prestations suivantes :
- Plan sur-mesure et personnalisé de 2 à 5 chambres
- Mode de chauffage au choix
- Grands choix d'équipements et de prestations
- Matériaux de qualité selon les normes en vigueur
- Accompagnement dans le choix et l’acquisition du terrain
- Construction conforme à la nouvelle RE 2020
Informations du terrain : Cadre naturel et paisible
Terrain viabilisé
Assainissement autonome, cout de raccordement réduit et gestion simplifié.
Taxe foncière très faible
espace généreux et intimité
Qualité de vie privilégié
Accès aux commodités proches
Demandez une étude gratuite et personnalisée de votre projet de construction !
Contactez David FORT au 06 72 60 33 16 (Maisons Chantal B - Maison Expo Gond-Pontouvre).
Prix avec assurance dommages-ouvrage comprise, terrain viabilisé, assainissement compris, VRD non compris, adaptation non comprise, frais de notaire non compris, taxes non comprises, frais divers non compris. Terrain sélectionné et vu pour vous sous réserve de disponibilité et au prix indiqué par notre partenaire foncier. Conditions et visuels non contractuels.




