Maison 107 m² 3 chambres sur terrain de 321 m²
à Saint-Yrieix-Sur-Charente (16710) – 217 000 €
Votre projet de construction à Saint-Yrieix-Sur-Charente
16710 Saint-Yrieix-Sur-Charente - Charente217 000 €
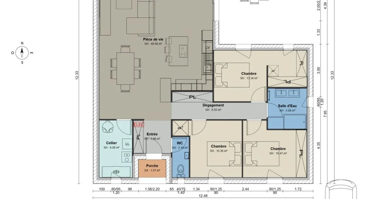
A SAINT-YRIEIX-SUR-CHARENTE sur un terrain de 321 m², MAISONS CHANTAL B vous propose de réaliser cette maison neuve d'une surface de 107 m² habitables avec 3 chambres.
Laissez vous seduire par cette maison moderne en L, pensée pour le confort et la lumière!
3chambres dont une suite parentale
Grande pièce de vie avec cuisine ouverte sur séjour ilot centrale, et deux baies vitrées
Plan optimisé et personnalisable.
Maison Eco performante RE 2020
Un projet idéal pour une famille ou un couple a la retraite.
Etude gratuite et plan sur demande
Informations du terrain : Limite Angoulême
Prêt à construire
Parcelle plate
Bel environnement
Taxe de raccordement comprise
Demandez une étude gratuite et personnalisée de votre projet de construction !
Laissez vous seduire par cette maison moderne en L, pensée pour le confort et la lumière!
3chambres dont une suite parentale
Grande pièce de vie avec cuisine ouverte sur séjour ilot centrale, et deux baies vitrées
Plan optimisé et personnalisable.
Maison Eco performante RE 2020
Un projet idéal pour une famille ou un couple a la retraite.
Etude gratuite et plan sur demande
Informations du terrain : Limite Angoulême
Prêt à construire
Parcelle plate
Bel environnement
Taxe de raccordement comprise
Demandez une étude gratuite et personnalisée de votre projet de construction !
Contactez David FORT au 06 72 60 33 16 (Maisons Chantal B - Showroom Cognac).
Prix avec assurance dommages-ouvrage comprise, terrain viabilisé, assainissement compris, VRD non compris, adaptation non comprise, frais de notaire non compris, taxes non comprises, frais divers non compris. Terrain sélectionné et vu pour vous sous réserve de disponibilité et au prix indiqué par notre partenaire foncier. Conditions et visuels non contractuels.









