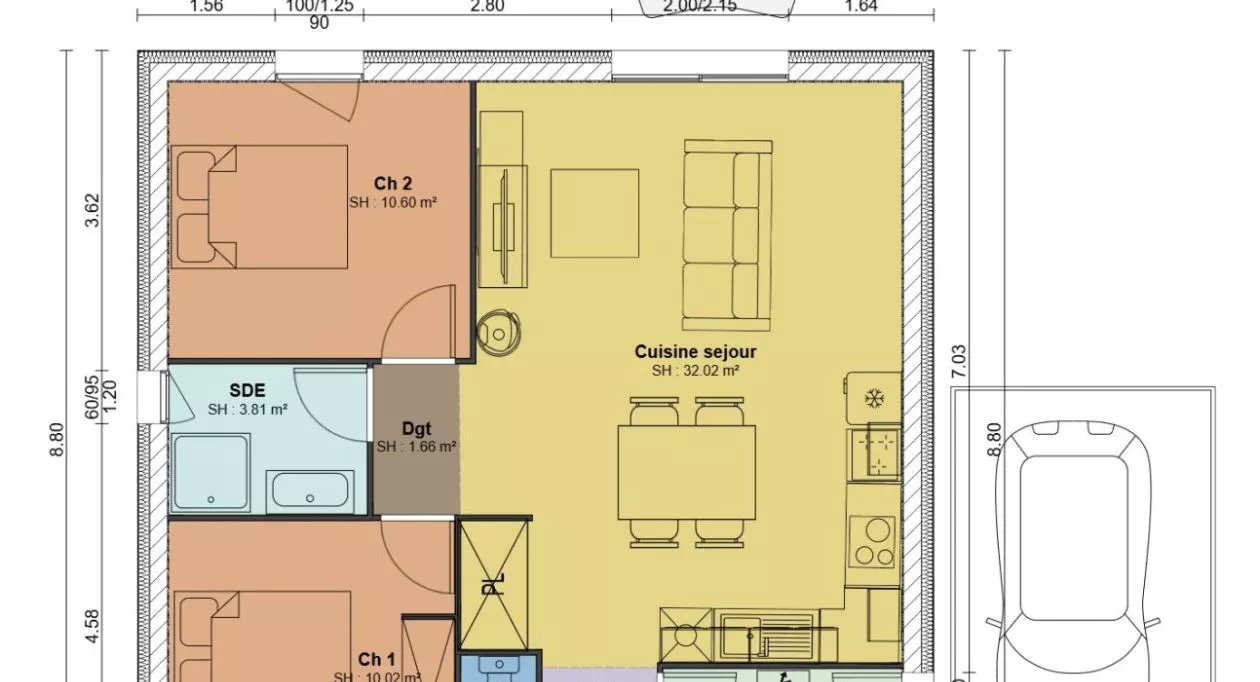
Maison 65 m² 2 chambres sur terrain de 388 m² 
 à Touvre (16600) – 156 000 €
Votre projet de construction à Touvre
16600 Touvre - Charente156 000 €
                            A TOUVRE sur un terrain de 388 m², MAISONS CHANTAL B vous propose de réaliser cette maison neuve d'une surface de 65 m² habitables avec 2 chambres.
MAISONS CHANTAL B vous propose les prestations suivantes :
- Plan sur-mesure et personnalisé de 2 à 5 chambres
- Mode de chauffage au choix
- Grands choix d'équipements et de prestations
- Matériaux de qualité selon les normes en vigueur
- Accompagnement dans le choix et l’acquisition du terrain
- Construction conforme à la nouvelle RE 2020
Informations du terrain : Bel environnement
Viabilisé avec Tout à l'égout
Joli vue
Demandez une étude gratuite et personnalisée de votre projet de construction !
MAISONS CHANTAL B vous propose les prestations suivantes :
- Plan sur-mesure et personnalisé de 2 à 5 chambres
- Mode de chauffage au choix
- Grands choix d'équipements et de prestations
- Matériaux de qualité selon les normes en vigueur
- Accompagnement dans le choix et l’acquisition du terrain
- Construction conforme à la nouvelle RE 2020
Informations du terrain : Bel environnement
Viabilisé avec Tout à l'égout
Joli vue
Demandez une étude gratuite et personnalisée de votre projet de construction !
Contactez David FORT au 06 72 60 33 16 (Maisons Chantal B - Showroom Cognac).
Prix avec assurance dommages-ouvrage comprise, terrain viabilisé, assainissement compris, VRD non compris, adaptation non comprise, frais de notaire non compris, taxes non comprises, frais divers non compris. Terrain sélectionné et vu pour vous sous réserve de disponibilité et au prix indiqué par notre partenaire foncier. Conditions et visuels non contractuels.





