Maison 76 m² 2 chambres sur terrain de 377 m² 
 à Le poire-Sur-Vie (85170) – 256 168 €
Votre projet de construction à Le poire-Sur-Vie
85170 Le Poire-Sur-Vie - Vendee256 168 €
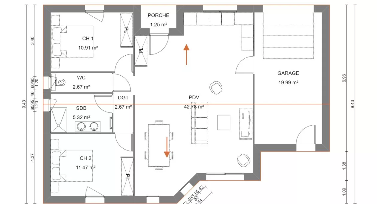
                            A LE POIRE-SUR-VIE sur un terrain de 377 m², MAISONS CHANTAL B vous propose de réaliser cette maison neuve d'une surface de 75.82 m² habitables avec 2 chambres.
MAISONS CHANTAL B vous propose les prestations suivantes :
- Plan sur-mesure et personnalisé de 2 à 5 chambres
- Mode de chauffage au choix
- Grands choix d'équipements et de prestations
- Matériaux de qualité selon les normes en vigueur
- Accompagnement dans le choix et l’acquisition du terrain
- Construction conforme à la nouvelle RE 2020
Informations du terrain : TRANSPORTS
ECOLES
COMMERCES
15 MINUTES DE LA ROCHE SUR YON
Demandez une étude gratuite et personnalisée de votre projet de construction !
MAISONS CHANTAL B vous propose les prestations suivantes :
- Plan sur-mesure et personnalisé de 2 à 5 chambres
- Mode de chauffage au choix
- Grands choix d'équipements et de prestations
- Matériaux de qualité selon les normes en vigueur
- Accompagnement dans le choix et l’acquisition du terrain
- Construction conforme à la nouvelle RE 2020
Informations du terrain : TRANSPORTS
ECOLES
COMMERCES
15 MINUTES DE LA ROCHE SUR YON
Demandez une étude gratuite et personnalisée de votre projet de construction !
Contactez Cédric DUBE au 06 73 62 19 24 (Maisons Chantal B - Showroom La Roche sur Yon).
Prix avec assurance dommages-ouvrage comprise, terrain viabilisé, assainissement compris, VRD non compris, adaptation non comprise, frais de notaire non compris, taxes non comprises, frais divers non compris. Terrain sélectionné et vu pour vous sous réserve de disponibilité et au prix indiqué par notre partenaire foncier. Conditions et visuels non contractuels.




