Maison 113 m² 3 chambres sur terrain de 273 m²
à Le chateau-D'oleron (17480) – 406 289 €
Votre projet de construction à Le chateau-D'oleron
17480 Le Chateau-D'oleron - Charente-Maritime406 289 €
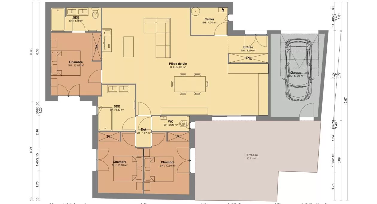
Maison Oléronaise, comprenant une entrée, un cellier, un WC indépendant, 1 suite parentale (salle d'eau), une grande pièce de vie lumineuse avec cuisine ouverte, 2 aurtes chambres, une deuxième salle d'eau et un garage.
Contactez David RAMOS au 06 78 25 07 60 (Maisons Chantal B - Siège Arvert).
Prix avec assurance dommages-ouvrage comprise, terrain viabilisé, assainissement non compris, VRD non compris, adaptation non comprise, frais de notaire non compris, taxes non comprises, frais divers non compris. Terrain sélectionné et vu pour vous sous réserve de disponibilité et au prix indiqué par notre partenaire foncier. Conditions et visuels non contractuels.










