Maison 129 m² 3 chambres sur terrain de 726 m²
à Corme-Royal (17600) – 320 744 €
Votre projet de construction à Corme-Royal
17600 Corme-Royal - Charente-Maritime320 744 € Exclusivité Maisons Chantal B
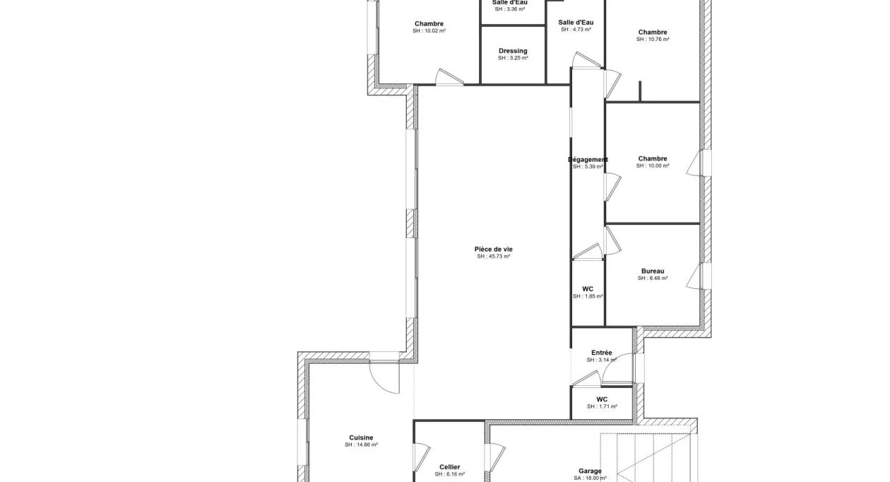
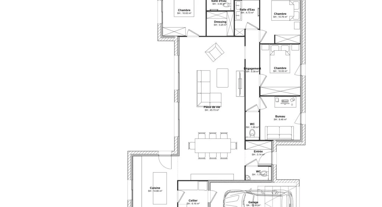
Belle maison, avec de beaux volumes. Elle est compsée d'une entrée avec un espace rangement , d'un Wc, une pièce de vie spacieuse et lumineuse avec sa cuisine semi-ouverte, cellier et garage. Pour l'espace nuit une belle suite parentale avec sa salle d'eau et son dressing, 2 belles chambres, 1 bureau, une salle d'eau et un Wc séparé.
Contactez David RAMOS au 06 78 25 07 60 (Maisons Chantal B - Siège Arvert).
Prix avec assurance dommages-ouvrage comprise, terrain non viabilisé, assainissement non compris, VRD non compris, adaptation non comprise, frais de notaire non compris, taxes non comprises, frais divers non compris. Terrain sélectionné et vu pour vous sous réserve de disponibilité et au prix indiqué par notre partenaire foncier. Conditions et visuels non contractuels.
















