Maison 89 m² 3 chambres sur terrain de 367 m²
à Saint-Georges-D'oleron (17190) – 426 005 €
Votre projet de construction à Saint-Georges-D'oleron
17190 Saint-Georges-D'oleron - Charente-Maritime426 005 €
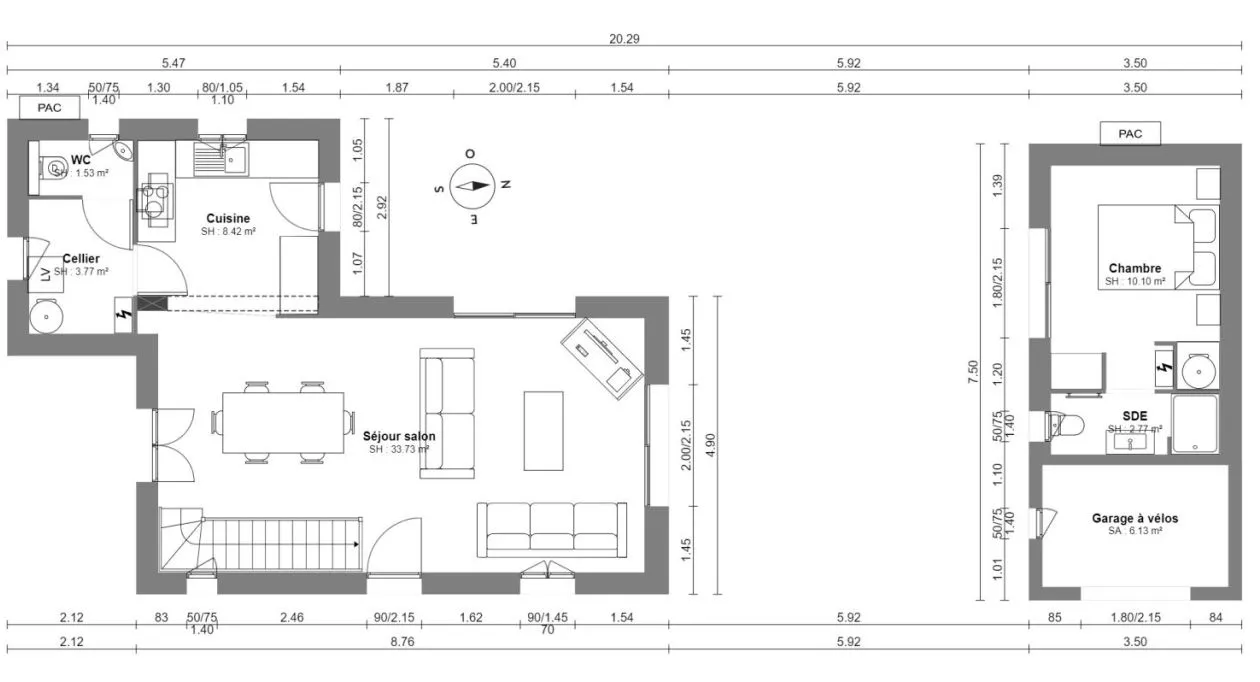
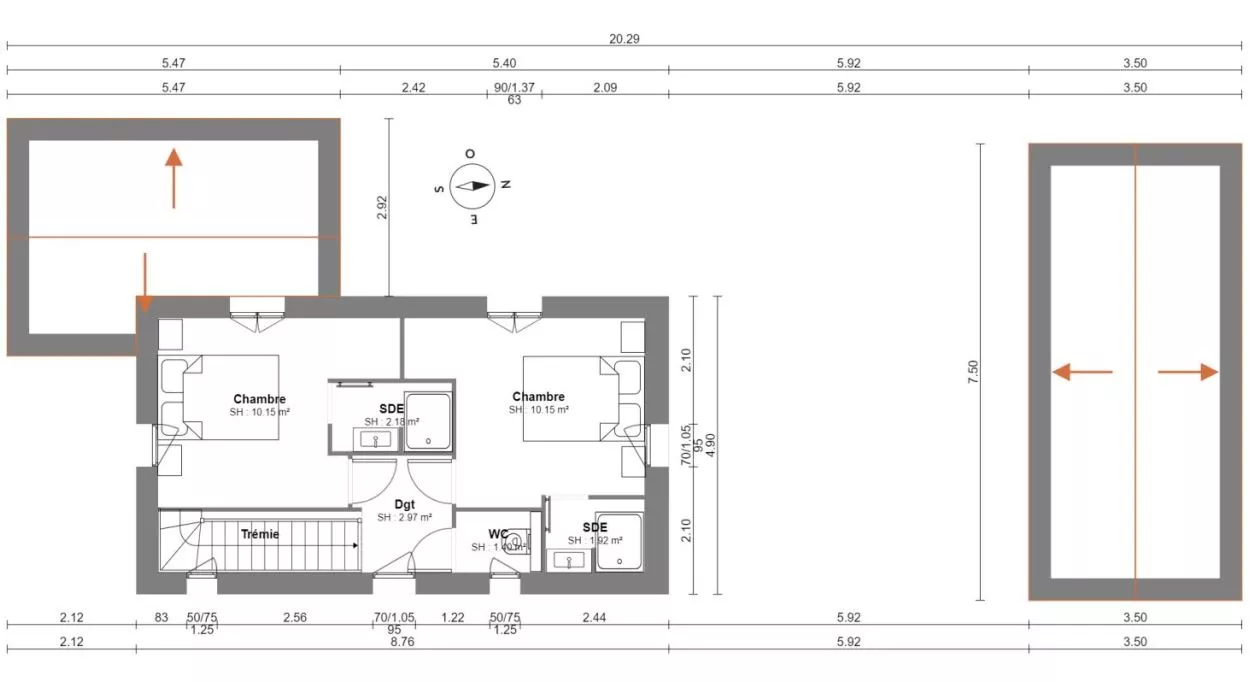
Maison avec étage partiel, comprenant au RDC 1 grande pièce de vie lumineuse avec cuisine ouverte, un cellier, un WC indépendant. A l'étage 2 chambres avec salle d'eau, et 1 wc indépendant. Une dépendance avec une chambre, salle d'eau et un garage à vélo. Permis déjà accepté.
Contactez David RAMOS au 06 78 25 07 60 (Maisons Chantal B - Siège Arvert).
Prix avec assurance dommages-ouvrage comprise, terrain viabilisé, assainissement non compris, VRD non compris, adaptation non comprise, frais de notaire non compris, taxes non comprises, frais divers non compris. Terrain sélectionné et vu pour vous sous réserve de disponibilité et au prix indiqué par notre partenaire foncier. Conditions et visuels non contractuels.








